Mail info@woonveste.nl of bel (0416) 37 87 80
Ga naar de inhoud

Nieuwbouw

Seniorenwoning, gezinswoning voor starters

Mei 2021 is de tweekapper aan de Jorisakkerstraat 17-19 door brand zwaar beschadigd en niet meer geschikt voor bewoning in de huidige staat. Uit veiligheid voor de omgeving heeft Woonveste opdracht gegeven voor de sloop van beide woningen welke in december 2021 heeft plaatsgevonden.

Wat is het plan

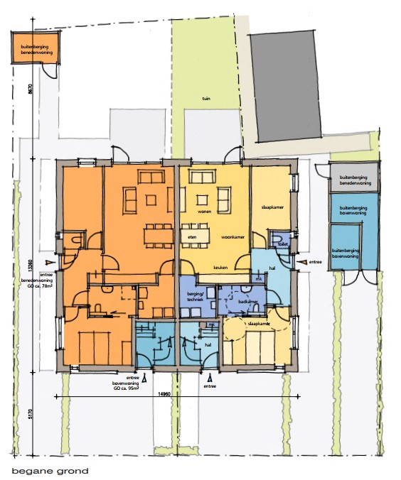
Het idee is om in plaats van 2 eengezinswoningen 4 woningen terug te bouwen, 2 benedenwoningen en 2 bovenwoningen.

Hoe gaan deze woningen eruitzien?
De benedenwoningen zijn geschikt voor senioren en hebben een volledig woonprogramma op de begane grond d.w.z. keuken/woonkamer/slaapkamer/badkamer, toilet e.d. Een buitenruimte komt er in de vorm van een tuin. Ook zal er een buitenberging en een parkeerplaats op eigen terrein aanwezig zijn.

De bovenwoningen hebben het woonprogramma op de eerste verdieping (keuken/ woonkamer/slaapkamer/toilet) en op de zolder (slaapkamer/badkamer). Deze zijn geschikt voor bijvoorbeeld startende (kleine) gezinnen tot maximaal 3 personen.  Een buitenruimte komt er in de vorm van een dakterras. Ook zal er een buitenberging en een parkeerplaats op eigen terrein aanwezig zijn.

Voor wie worden deze woningen gebouwd?

  • Benedenwoningen 1-2 personen met alle voorzieningen op 1 woonlaag voor senioren (55+)
  • Bovenwoningen 1-3 personen 1e verdieping en zolderverdieping voor bijvoorbeeld starters en kleine gezinnen

Wat willen we gaan doen
• Tot en met mei vinden er diverse onderzoeken plaats.
• Voor de zomer wordt de vergunningaanvraag ingediend.
• Het laatste kwartaal 2024 beogen we te starten met de bouw.
• In het najaar van 2025 verwachten we de woningen op te leveren.

Verhuur
Het is de planning de woningen rond de zomer 2025 te adverteren op Thuispoort. Houd deze website in de gaten voor actuele informatie.
De huurprijzen voor 2025 zijn nog niet bekend.
Voor de toewijzing van deze woningen zal er een intake gesprek plaatsvinden. Het intake- en kennismakingsgesprek maakt onderdeel uit van de toewijzingsprocedure. 

Nieuwsbrieven
Nieuwsbrief april 2023
Nieuwsbrief april 2024

 

 

 

Details

Aantal woningen 4
Status Start bouw Q4 2024 (onder voorbehoud)